Głosować można z pomocą platformy VOX POPULI przez siedem kolejnych dni, tj. do północy z 3 na 4 marca.
Głosy można oddawać również w wersji papierowej. Formularze są dostępne w Centrum Kontaktu z Mieszkańcami w pasażu Schillera w sobotę w godz. 9-13 oraz od poniedziałku do piątku w godz. 8-19.
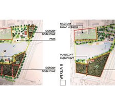
W wyniku warsztatów urbanistycznych przeprowadzonych przez Miejską Pracownię Urbanistyczną wypracowane zostały trzy warianty zagospodarowania terenu:
- Wariant 1 - zakłada utworzenie parku z miejską plażą na terenach zajmowanych obecnie przez ogródki działkowe między ul. Przędzalnianą i al. Rydza-Śmigłego.
- Wariant 2 - zakłada zachowanie ogródków działkowych i uporządkowanie jedynie terenu przylegającego bezpośrednio do stawu.
- Wariant 3 - zakłada utworzenie parku z miejską plażą po północnej stronie stawu, koło Muzeum Pałac Herbsta i zachowanie ogródków po południowej stronie.
Grafiku ilustrujące powyższe warianty można zobaczyć w galerii u dołu tego wpisu.
Miasto realizuje na Księżym Młynie szeroki program rewitalizacji. Poza miejskimi inwestycjami w remonty famuł, uliczek i parków Źródliska, mamy tu także projekty Akademii Sztuk Pięknych i deweloperskie. W program odnowy Księżego Młyna chcemy włączyć również staw przy ul. Przędzalnianej i otaczający go teren. To przestrzeń wyjątkowa - staw w centrum miasta, jedyny taki teren, który możemy zagospodarować na miejsce wypoczynku, rekreacji, imprez plenerowych i plenerowych lokali nad samą wodą.
