Jak czytamy w założeniach konkursu, powodem jego zorganizowania jest potrzeba wypracowania wzorcowych form architektonicznych osadzonych w kontekście zabytkowej Łodzi, które mogłyby być stosowane lub stanowić inspirację przy wznoszeniu nowych budowli na obszarze historycznego śródmieścia. Konkurs ma wskazać możliwe kierunki poszukiwań twórczych rozwiązań we współczesnym rozwoju architektury łódzkich kamienic, które wzmocnią tożsamość urbanistyczną i architektoniczną miasta. Współczesna Kamienica Łódzka ma być twórczym przetworzeniem historii, w oparciu o nowe trendy i rozwiązania technologiczne, a także stanowić podstawę w dyskusji o ciągłości rozwoju architektury.
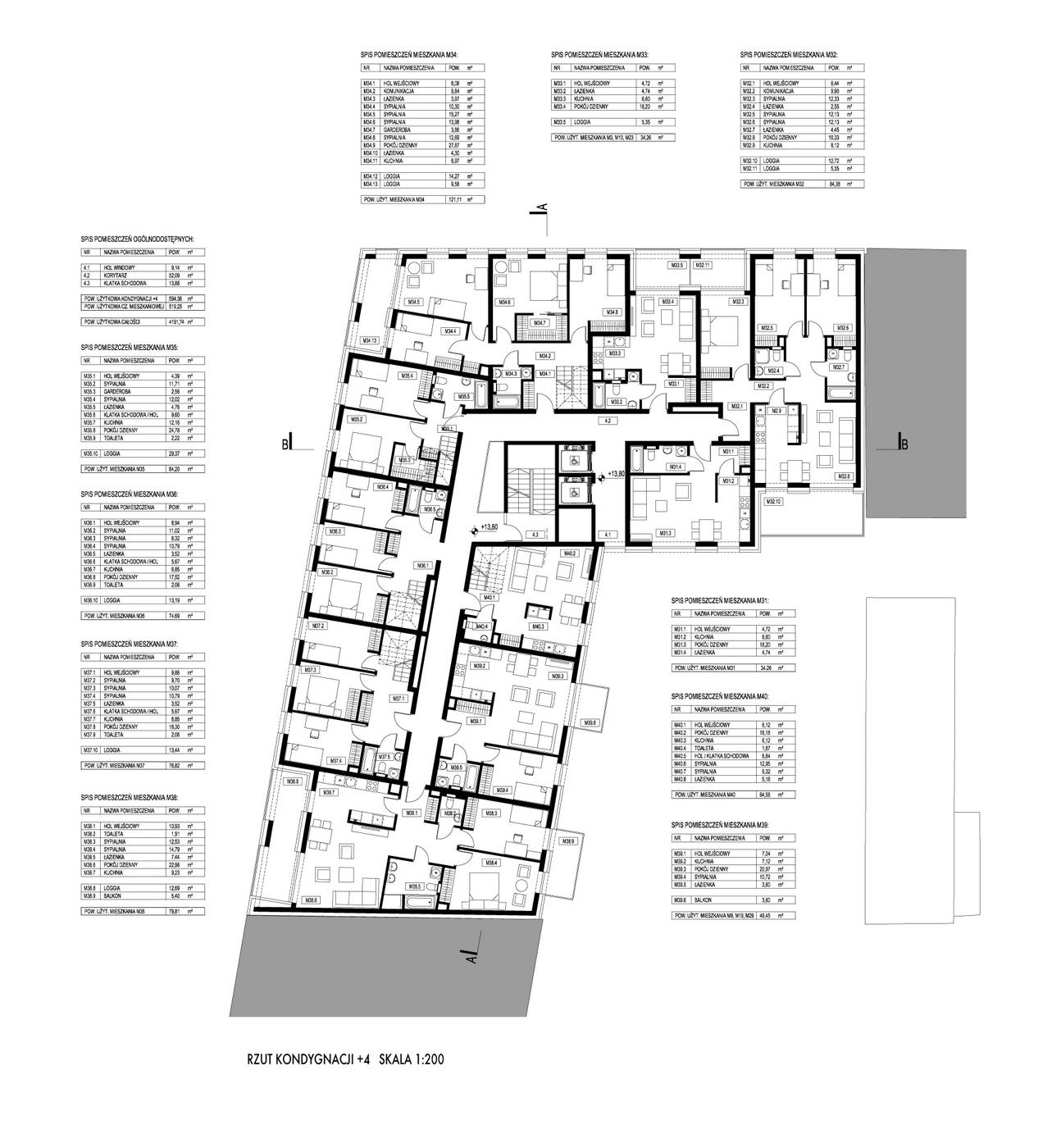
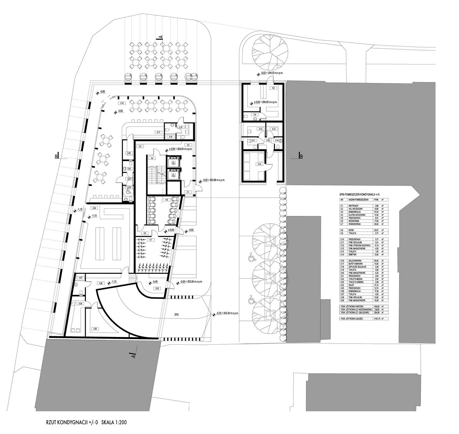
Konkurs polegał na przedstawieniu projektu kamienicy narożnej wraz z zagospodarowaniem terenu na obszarze działki u zbiegu ulicy Sienkiewicza i Orlej w Łodzi.
Rozstrzygnięcie konkursu z udziałem wiceprezydenta Wojciecha Rosickiego i członków Sądu Konkursowego odbyło się 21 lipca w Art_Inkubatorze przy ul. Tymienieckiego.
W skład Sądu Konkursowego wchodzili: Marek Janiak (przewodniczący), Robert Sobański (zastępca przewodniczącego), Piotr Woldański, Kamila Kwiecińska-Trzewikowska, Magdalena Wiśniewska, Tomasz Konior, Bolesław Stelmach, Marek Pabich, Artur Zaguła.
Prace konkursowe można obejrzeć na wystawie w Art_Inkubatorze przy ul. Tymienieckiego 3, sala A_22, czynnej w dniach:
- 24.07.2017 r. - 27.07.2017 r. (pon. - czw.) w godz. 12:00-17:00
- 28.07.2017 (pt.) w godz. 10:00 - 14:00,
Wyniki prac Sądu Konkursowego
I nagroda
- Małgorzata Mader, Michał Suskiewicz - 20 000 zł (praca nr 132491)
- Łukasz Wawrzyniak - 20 000 zł (praca nr 151816)
II nagroda
- Tomasz Berezowski, Marta Dyrda, Radosław Fikus - 15 000 zł (praca nr 080147)
III nagroda
- Piotr Kilanowski - 10 000 zł (praca nr 191084)
- RAAS Architekci Remigiusz Strzelecki, Arkadiusz Strzelecki – 10 000 zł (praca nr 300325)
Wyróżnienie
- Przemysław Bigaj, Piotr Broniewicz, Paweł Mika - 4 000 zł (praca nr 808880)
- Małgorzata Szydło i Mateusz Szydło - 4 000 zł (praca nr 310514)
- Joanna Ferens-Hofman - 4 000 zł (praca nr 210486)
- Architekci Łosiak Siwiak Rafał Łosiak, Bartłomiej Siwiak - 4 000 zł (praca nr 311113)
- Antoni Szeszuła, Łukasz Rawecki, Joanna Piasecka - 4 000 zł (praca nr 174471)
- Rafał Stemporowski - 4 000 zł (praca nr 200857)
- Michał Piechnik, Anna Piechnik - 4 000 zł (praca nr 100101)
Nagroda Architekta Miasta
- S.LAB Architektura Tomasz Sachanowicz - 7 000 zł (praca nr 220716)
